


“Svravriti” defines self-reliance, as a practice that aims to uplift the village industries & eventually the individuals.
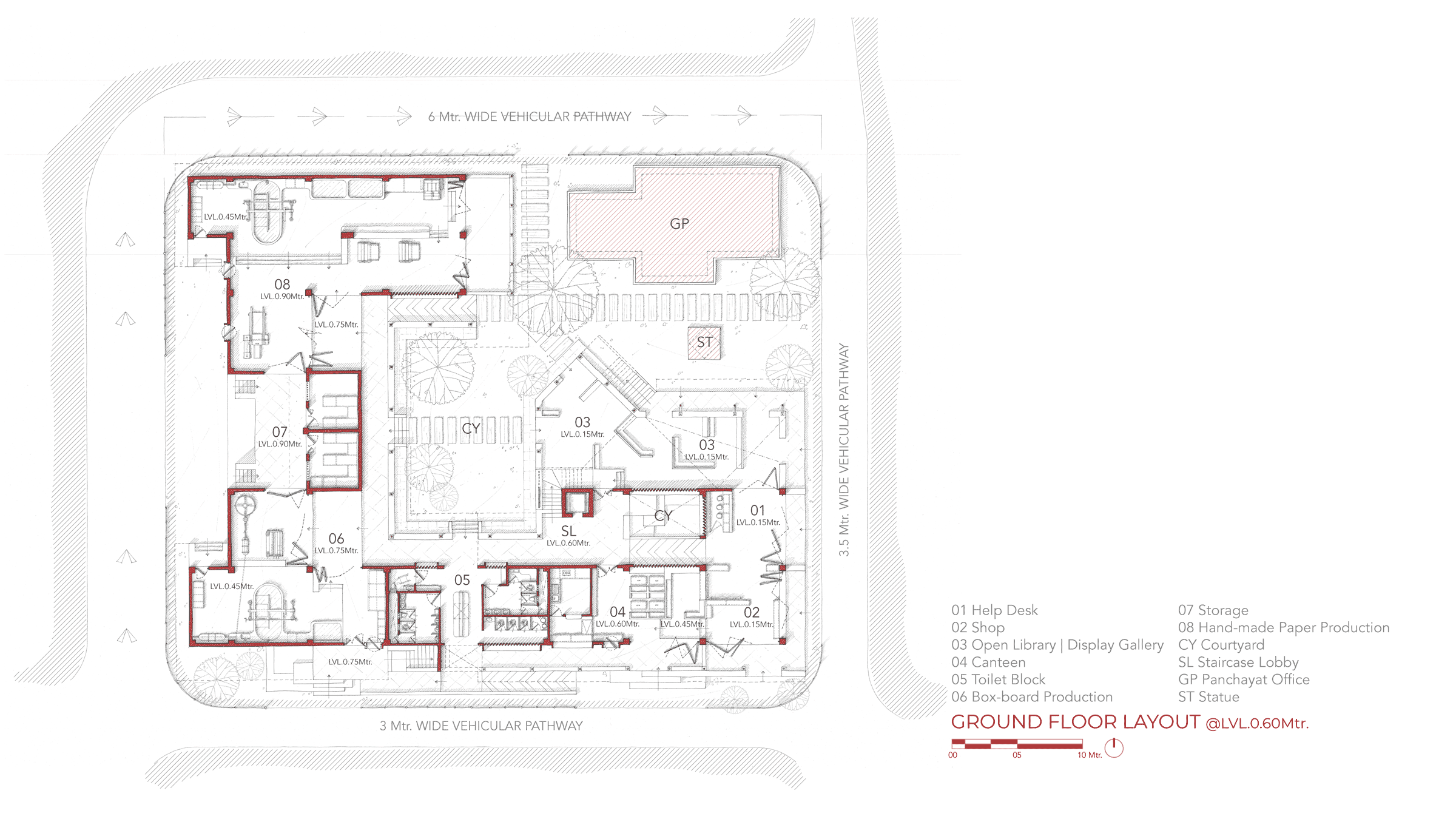
A settlement named Sindhi Sirasgaon, located 25km west of the main city of Aurangabad strives for cotton cultivation which is a no-profit & no loss mode of income in the present day. Cotton stalks, the byproduct of the cultivation is observed to be an unknown potential that can be capitalised into a village industry [Handmade Paper & Box-board Production] that aims to boost local production & local employment in varied opportunities.
The production unit not just acts as a mode of income but also as an exemplar unit to promote local & ecological practices of construction. It intervenes as a public node activating the passive areas of the settlement with a secured sense of design.
Medium: Ink on Cartridge
Postproduction: Adobe Photoshop
Credits: Humans – Sandesh Jadhav
Material Hatch – Simran Ajgaonkar