


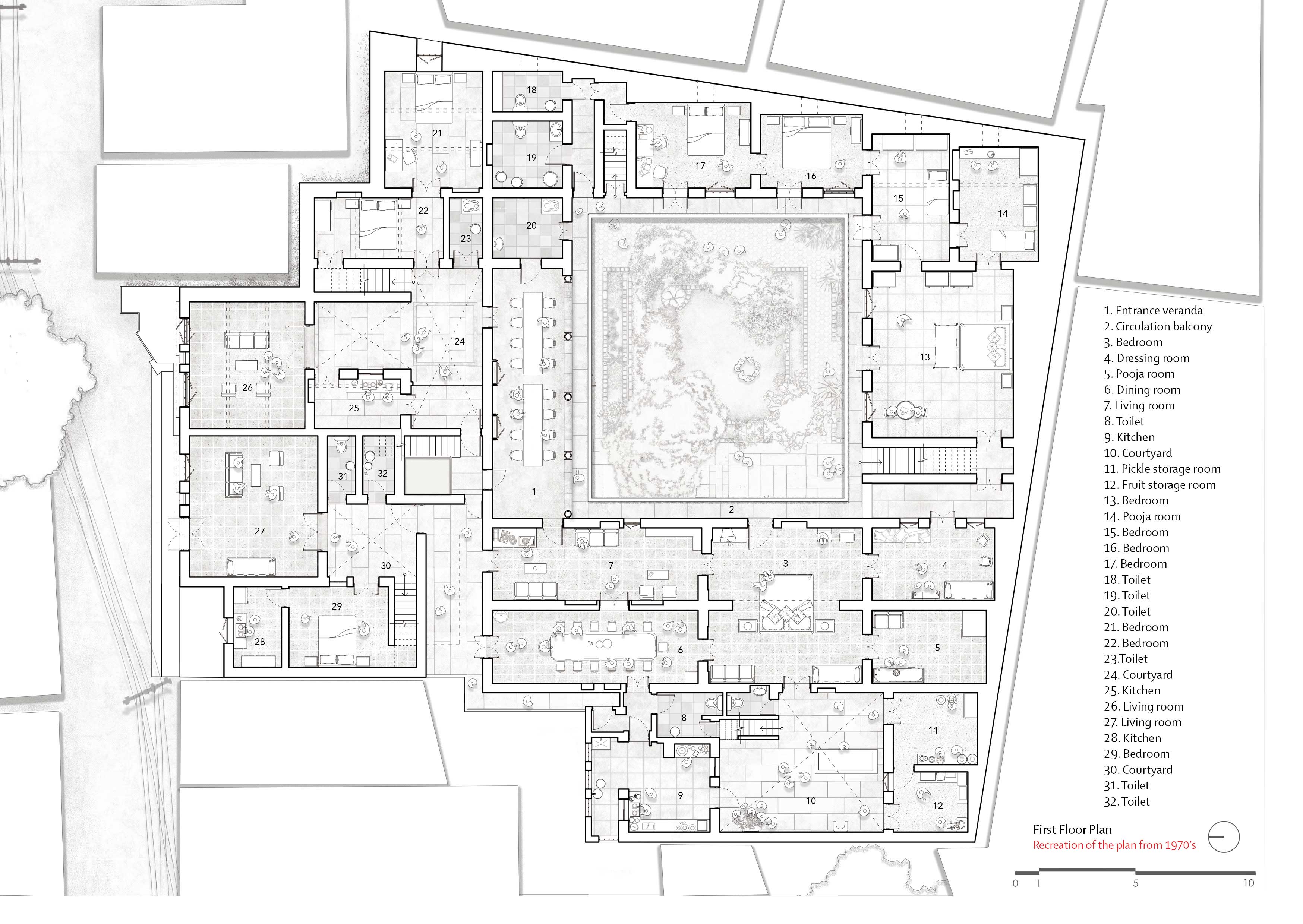
The project is a journey of personal discovery, exploring the intersections of architecture, history, and the passage of time through the lens of my family’s story. It serves as an archive of measured drawings, oral histories, and images, guiding readers through the evolution of a house in Gwalior where my mother spent her entire childhood. By layering historical details provided by my mother and other elders in the family, we were able to recreate a set of comprehensive drawings that depicted the house as it was in the 1970s as well as the current state of the house. This process underscored the importance of integrating physical measurements with oral histories to achieve a more comprehensive understanding of the past.
Credits
Sanjana Pande, Meet Mendpara, Om Naik, Chengalva Ennamsetti, Nessia Chitre, Hradini Rajani and Janhavi Kadu